Huntley

Support Level: Fully Accessible, High Physical Support

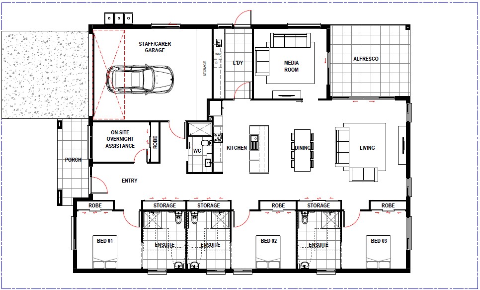
This brand-new modern home is located in Huntley with stunning escarpment views.

 

The home has 3 large bedrooms, each with their own private ensuite; huge living areas and kitchen, separate theatre room, large alfresco dining area, ducted air conditioning and modern fittings throughout.

 

The home has been built to the Specialist Disability Accommodation (SDA) design for High Physical Support (HPS) and Fully Accessible (FA) SDA categories.

 

The home is supported by staff 24/7 from the onsite office or as required.

 

Interested in this home?

If you’d like to know more about this home please contact Michael